Startseite
Menu
Inhalt
Kontakt
Suche
Sprachwahl
Wichtige Seiten
Menu
öffnen
Menu
schliessen
Organisatorisches
UNICARD
Universität
Studium
Forschung
Innovation
Lifelong Learning
Fakultäten
& Institute
Suchen
Suchen
Suchen
Organisatorisches
UNICARD
Was ist die UNICARD?
Erhalt und Validierung
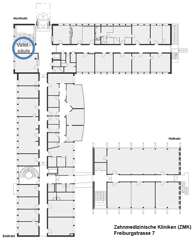
Standorte UNICARD Infrastruktur
Einsatz als Zahlungsmittel
Vergünstigungen
Aussehen und Merkmale
validierung
Oben