Modulbau Tierspital
Temporäres Laborgebäude Vetsuisse
Inbetriebnahme geplant 2028
Die Überarbeitung der räumlichen Entwicklungsstrategie 3012 der Universität Bern im Jahr 2019 hat das Wachstum der Uni Bern in den letzten Jahren eindrücklich aufgezeigt. Die räumliche Infrastruktur konnte mit diesem rasanten Studierenden- und Mitarbeitendenwachstum nicht Schritt halten, was nun insbesondere die Vetsuisse Fakultät, die Medizinische Fakultät und die Phil. nat. Fakultät mit der entsprechenden Laborinfrastruktur vor grosse Herausforderungen stellt.
Um diesen räumlichen Herausforderungen entsprechend zu begegnen wurde das Projekt „Winterchallenge“ ins Leben gerufen. Ziel war es adäquate Laborinfrastruktur mit einem minimalen Angebot an Begleiträumen wie Büros und Begegnungszonen zu schaffen, welche für möglichst viele verschiedene Organisationseinheiten zur Verfügung stehen, das sogenannte „Laborhotel“ wurde kreiert, allerdings aktuell leider erst auf dem Papier.
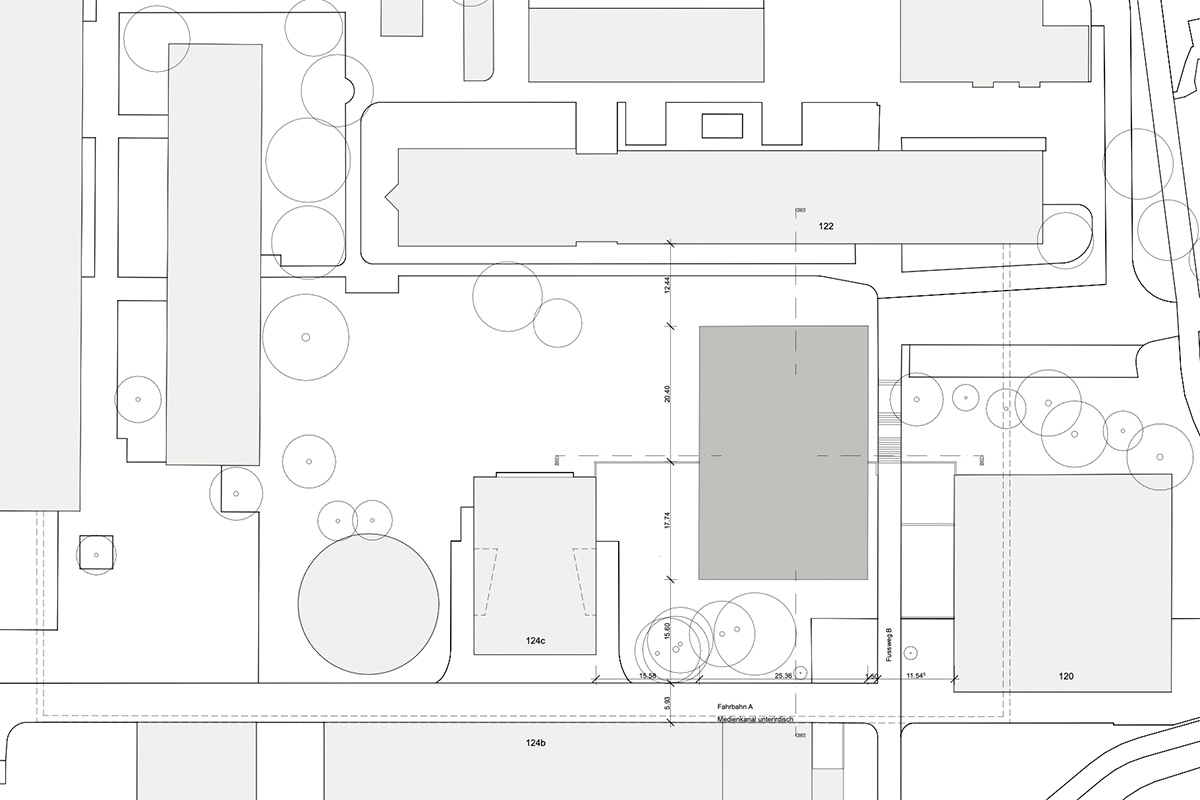
An der Umsetzung vom Papier in die gebaute Umgebung arbeiten wir mit dem Amt für Grundstücke und Gebäude (AGG) mit Hochdruck. Im Falle der Vetsuisse Fakultät konnte ein Standort auf dem Tierspital eruiert werden, welcher sich für ein Laborhotel gut eignen würde. Der Modulbau Tierspital soll der Fakultät als Überbrückungslösung bis zum Neubau Länggassstrasse 122+ und der damit verbundenen Gesamtarealentwicklung dienen.
Mit dem Modulbau könnten entsprechende Organisationseinheiten neu verortet, wichtige Synergien genutzt und vor allem den Biosicherheitshemen im Laborbereich entsprechend begegnet werden. Somit kann der dringende und hohe Raumbedarf der Vetsuisse, sowohl im Büro- wie auch im Laborbereich, temporär entschärft werden.
Für den Standort F auf dem Tierspitalareal konnte durch das Planerteam rund um MRH Architekten eine Machbarkeitsstudie erstellt werden, auf welcher Basis das generelle Baugesuch eingereicht wurde. Ein entsprechender Bescheid des Bauinspektorats wird im Sommer 2023 erwartet.
